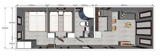
Mobilný dom SUPER ARKTIK WOOD 12x4 m - predaný