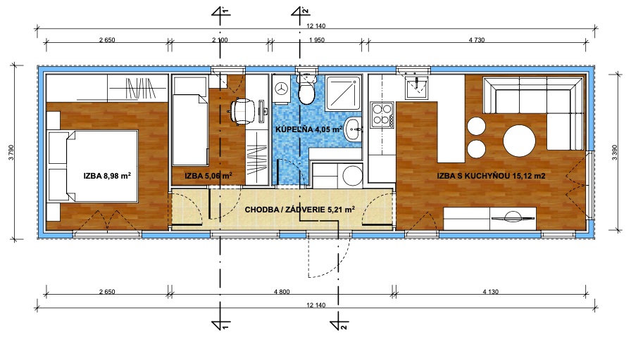
Galéria Super Arktik ® FAMILY okamžitý predaj | Novy.MobilnyDom